Услуги и цены

ПЛАНИРОВОЧНОЕ РЕШЕНИЕ
- Обмерный план
- План демонтажа
- План возведения новых перегородок и дверных проемов
- План после перепланировки
- План расстановки мебели
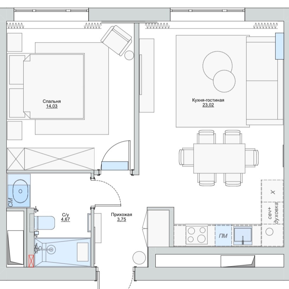
- План расстановки мебели и оборудования с размерами
Стоимость:
площадь до 50 кв.м — 30 000 руб.
более 50 кв.м — 600₽/кв.м
Срок исполнения — 2 недели

ТОЛЬКО ЧЕРТЕЖИ
- Обмерный план
- План демонтажа (если необходимо)
- План возведения новых перегородок и дверных проемов
- План после перепланировки
- План расстановки мебели
- План расстановки мебели и оборудования с размерами
- Планы электрики (освещение, выключатели, розетки)
- План потолков с указанием типа используемых материалов
- План полов с указанием типа напольных покрытий
- План отделочных материалов по стенам
- План сантехнического оборудования
- План расположения систем отопления и вентиляции
- Спецификация дверей с указанием размеров дверных проемов
Стоимость:
площадь до 200 кв.м — 1 700 руб./кв.м
более 200 кв.м — цена договорная
Срок исполнения — месяц

ДИЗАЙН ПРОЕКТ С 3Д ВИЗУАЛИЗАЦИЯМИ
- Обмерный план
- План демонтажа (если необходимо)
- План возведения новых перегородок и дверных проемов
- План после перепланировки
- План расстановки мебели
- План расстановки мебели и оборудования с размерами
- Планы электрики (освещение, выключатели, розетки)
- План потолков с указанием типа используемых материалов
- План полов с указанием типа напольных покрытий
- План отделочных материалов по стенам
- План сантехнического оборудования
- План расположения систем отопления и вентиляции
- Спецификация дверей с указанием размеров дверных проемов
- Развертка стен по каждому помещению
- Визуализации всех основных помещений
- Спецификации сантехнического оборудования, осветительного оборудования, отделочных материалов и мебели
- Отдельные планы с размерами, описанием материалов и тех заданием с заказной мебелью
Стоимость:
площадь до 150 кв.м — 4 000 руб./кв.м
выше 150 кв.м — 3 000 руб./кв.м
Срок исполнения — минимум 2 месяца

АВТОРСКИЙ НАДЗОР
ЧТО ВХОДИТ:
- Выезды на объект, не менее 4 раз/месяц
- Контроль соответствия хода ремонта дизайн-проекту
- Общение с подрядчиками и строителями
- Утверждение выкрасов, декоративных покрытий и чистовых материалов
- Консультирование заказчика по возникающим вопросам
Ведение проекта с первых дней ремонта и до финального клининга
Стоимость:
площадь до 150 кв.м — 50 000/месяц
более 150 кв.м — 70 000/месяц
ЗАКАЗАТЬ ПРОЕКТ
Свяжитесь с мной напрямую чтобы начать планировать свой особенный интерьер

